| |
| | | | | | | | |
| A GYÁRTÓTÓL: |
Ecotor garázskapu gyártás, hõszigetelt garázsajtó, szekcionált garázskapu, egyedi színû garázskapu, ipari kapu, automatika, kapunyitó, garázsnyitó, kaputechnika, távirányító, távadó, tolókapu, úszókapu görgõ, kapuvasalat, kapu zsanér, kapugörgõ, C profil, garázskapu alkatrészek, torziós rugó, felmérés, gyártás, telepítés, kapu szervíz, kapu karbantartás, Budapest, Pest megye, ingyenes árajánlat, garázskapu akció, garázsajtó akció, kapugörgõk,
|
| | |
|
| Ipari kapu vasalatrendszereink - Minden helyszínre, minden igényre |
 |
Speciális vasalataink révén nemcsak új épületekben, hanem felújításoknál, átalakításoknál is lehetõvé válik ipari kapu beépítése: maximálisan kihasználva a rendelkezésre álló teret vagy éppen a meglévõ helyszûkére adva megoldást:
|
|
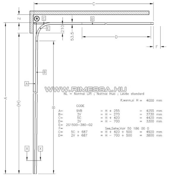
| NORMÁL SÍNVEZETÉS |
|
NL normál vasalat, a legáltalánosabb, alapáras típus
A torziós rugózat a kapunyílás felett helyezkedik el. |
| BŐVEBB INFO» |
|
|
|
NL normál sínvezetésünk a legelterjedtebb típus, ipari kapuink alapára ezt tartalmazza.
Részletes mûszaki dokumentációját itt töltheti le >> |
VISSZAZÁR X
|
|
|
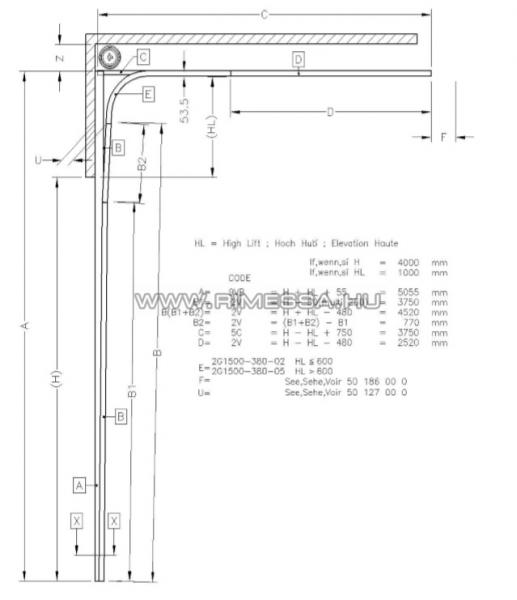
| EMELT SÍNVEZETÉS |
|
HL emelt vasalat, torziós rugó a nyílás felett
a függõleges vasalat tetején elhelyezve |
| BŐVEBB INFO» |
|
|
|
HL emelt sínvezetésünket elsõsorban olyan autószerelõ mûhelyekbe, logisztikai központokhoz, raktárakhoz ajánljuk, ahol a kapu mögötti területet közvetlenül teljes magasságban ki szeretnék használni, legyen szó polcrendszerrõl, darupályáról, gépkocsi emelõrõl.. |
VISSZAZÁR X
|
|
|
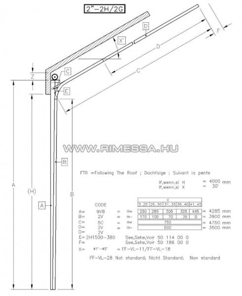
| TETÕKÖVETÕ SÍNVEZETÉS |
|
FTR ipari tetõkövetõ vasalattal lekövetheti a tetõ hajlásszögét.
A rugó a nyílás felett van elhelyezve. |
| BŐVEBB INFO» |
|
|
|
Tetõkövetõ sínvezetésünkkel a helyi adottságokat figyelembe véve maximalizálni tudja a felhasználható belsõ teret, az épület tetejének hajlásszögét lekövetve a sínvezetés a tetõ alá kerül beszerelésre
Részletes mûszaki információ letöltése ITT |
VISSZAZÁR X
|
|
|
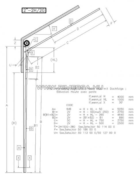
| EMELT ÉS TETÕKÖVETÕ SÍNVEZETÉS |
|
Nagy belmagasságú, ferdetetõs helyszínek esetén ezzel a vasalattípusunkkal maximalizálhatja a rendelkezésre álló teret!
Rugó elhelyezése elöl. |
| BŐVEBB INFO» |
|
|
|
|
VISSZAZÁR X
|
|
|
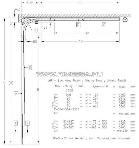
| ALACSONYÍTÓ SÍNVEZETÉS |
|
LHR alacsonyító vasalatunk kis belmagasságú helyekre nyújt megoldást. A rugók elhelyezése hátul történik. |
| BŐVEBB INFO» |
|
|
|
|
VISSZAZÁR X
|
|
|
| ALACSONY TETÕKÖVETÕ SÍNVEZETÉS |
|
Olyan helyszínekre, ahol a nyílás felett kevés hely áll rendelkezésre, és a tetõ síkját követni kell. Rugó elhelyezése hátul! |
| BŐVEBB INFO» |
|
|
|
|
VISSZAZÁR X
|
Krjen rajnlatot most! |
|
|
|